Projekti

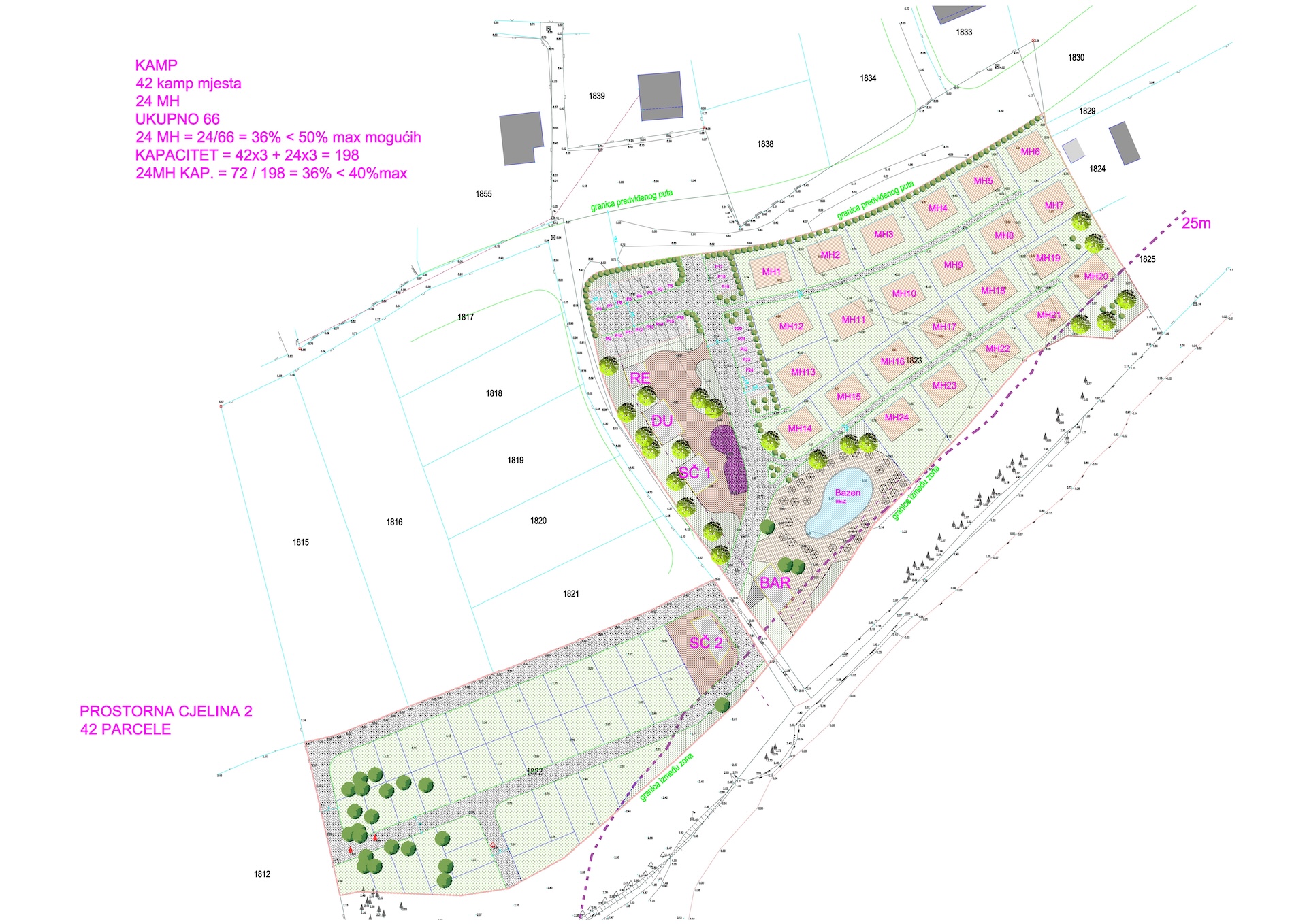
Masterplan kamp Kaštela

Kaštela, Hrvatska 2019. Planska dokumentacija

Godina: 2019.

Faza: Projekt dovršen

Lokacija: Kaštela

Opis zahvata: Planska dokumentacija

Kvadratura: 12.000 m²

Scroll